Lokal użytkowy Sprzedaż: Koszalin
Nr oferty 4403306
Liczba pokoi 8
Piętro / Ilość pięter 1 / 1
Cena metra 3 647 PLN
Cena 699 000 PLN
Powierzchnia 191.68 m2

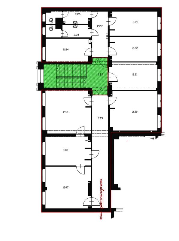
Lokal użytkowy 191,68 m2 , I piętro , Koszalin, ul. Armii Krajowej (wejście od ul. Jana z Kolna)

Świetna lokalizacja w ścisłym centrum Koszalina, tuż przy dworcu PKP/PKS, w bezpośrednim sąsiedztwie głównych arterii miasta. Lokal znajduje się na pierwszym piętrze w bocznej nawie budynku (od strony ul. Jana z Kolna), z wejściem klatką schodową bezpośrednio od dużego parkingu.

 Najważniejsze informacje:

  • Powierzchnia: 191,68 m2

  • 8 pomieszczeń biurowo-użytkowych (9,16–23,60 m2)

  • 2 toalety

  • Stan: do remontu/adaptacji

  • Ogrzewanie z sieci miejskiej (MEC) – instalacja do wykonania wewnątrz lokalu

 Idealny pod:

  • biuro (IT, marketing, księgowość, projektowanie)

  • kancelarię lub siedzibę firmy

  • podział na małe mieszkania inwestycyjne

  • adaptację pod mini hostel lub działalność najmu krótkoterminowego

 Atuty lokalizacji:

  • ścisłe centrum, 50 m od dworca PKP/PKS

  • bezpośrednie wejście z ulicy i parking przy wejściu

  • komunikacja miejska, usługi, urzędy i gastronomia w zasięgu 2–3 minut pieszo

  • bardzo dobra ekspozycja i widoczność od strony ul. Jana z Kolna

Dodatkowo:

  • Transakcja zwolniona z podatku VAT

  • Możliwość zakupu podobnych lokali w budynku (różne powierzchnie i układy)

  • Budynek o konstrukcji żelbetowo-murowanej, dawniej siedziba banku – wysoki standard konstrukcyjny

Zapraszamy na prezentację – to lokal z ogromnym potencjałem inwestycyjnym i biznesowym!
Oferta pod opieką licencjonowanego pośrednika (nr lic. 14825)

 

Ogólne warunki

Rynek Wtórny
Cena 699 000 PLN
Cena metra 3 647 PLN
Powierzchnia 191.68
Liczba pokoi 8
Piętro 1
Ilość pięter 1

Opis budynku

Stan techniczny Do remontu
Typ budynku Biurowiec
Typ obiektu
Zaplecze socjalne
Opłaty 2000.00

Standard

Ogrzewanie C.o. miejskie
Balkon Brak
Winda Nie
Gaz W budynku
Kanalizacja W budynku
Woda W budynku

Pomieszczenia

Parking / Garaż

Garaż Brak

Opiekun oferty

Agnieszka Naskręcka
tel. 508 359 644

e-mail: biuro@nieruchomoscibliskomorza.pl

 

 







Lokal użytkowy Sprzedaż: Koszalin
Nr oferty 4403306
Liczba pokoi 8
Piętro / Ilość pięter 1 / 1
Cena metra 3 647 PLN
Cena 699 000 PLN
Powierzchnia 191.68 m2

Lokal użytkowy 191,68 m2 , I piętro , Koszalin, ul. Armii Krajowej (wejście od ul. Jana z Kolna)

Świetna lokalizacja w ścisłym centrum Koszalina, tuż przy dworcu PKP/PKS, w bezpośrednim sąsiedztwie głównych arterii miasta. Lokal znajduje się na pierwszym piętrze w bocznej nawie budynku (od strony ul. Jana z Kolna), z wejściem klatką schodową bezpośrednio od dużego parkingu.

 Najważniejsze informacje:

 Idealny pod:

 Atuty lokalizacji:

Dodatkowo:

Zapraszamy na prezentację – to lokal z ogromnym potencjałem inwestycyjnym i biznesowym!
Oferta pod opieką licencjonowanego pośrednika (nr lic. 14825)