Mieszkanie Sprzedaż: Koszalin
Nr oferty 5001518
Liczba pokoi 3
Piętro / Ilość pięter 3 / 3
Cena metra 9 731 PLN
Cena 790 000 PLN
Powierzchnia 81.18 m2

Przestronne mieszkanie z loggią, tarasem i miejscem postojowym w hali garażowej w cenie ! Tu poczujesz się, jak w  domu !

Prezentujemy 2-poziomowy lokal, znajdujący się w nowszym budynku z windą z 2018 roku, przy ul. Hallera na Osiedlu nad Rozlewiskiem (ZIMAR).

Mieszkanie usytuowane na III i IV piętrze o powierzchni użytkowej 81,18 m2.

Na I poziomie znajduje się przestronny korytarz, łazienka z wc, garderoba i 2 pokoje. Z jednego z pokoi wyjście na loggię.

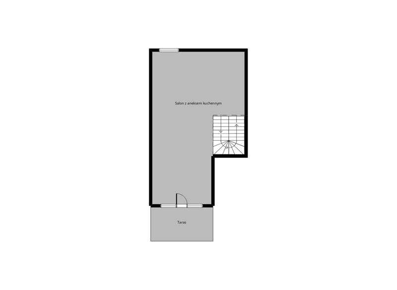
Na II poziom (antresolę) prowadzą piękne drewniane schody, gdzie zaaranżowano duży salon z aneksem kuchennym (ok. 30 m2). Z salonu wyjście na taras.

Mieszkanie bardzo zadbane, ponieważ użytkowane przez 1 osobę. Wykończone w neutralnym, ponadczasowym stylu więc każdemu przypadnie do gustu.

Koszty utrzymania nieruchomości wynoszą 1098 zł czynszu, w tym zaliczka na c.o., fundusz remontowy za lokal i za halę garażową, koszty utrzymania hali garażowej, opłata stała za c.o., zaliczka na wodę (3 m3 ciepłej i 5 m3 zimnej), wywóz nieczystości za 1 0s., utrzymanie części wspólnych - hala garażowa i lokal mieszkalny. Do opłat doliczyć należy jedynie opłaty za energię.

Do mieszkania przynależy miejsce postojowe w hali garażowej, które jest w cenie nieruchomości.

Istnieje możliwość pozostawienia umeblowania.

Zdecydowane atuty nieruchomości to :

- komfort życia, jak w domu,

- loggia (4,57 m2) i taras (5,89 m2),

- miejsce postojowe w hali garażowej w cenie.

Pożądana lokalizacja ! W niedalekiej odległości C.H. Forum i Wodna Dolina. Budynek, w którym mieści się mieszkanie jest jednym z najlepszych na osiedlu.

Przyjdź i zobacz to mieszkanie na żywo, a gwarantujemy, że się nie rozczarujesz !

Oferta na wyłączność. Oglądanie w obecności Pośrednika po uprzednim uzgodnieniu terminu.

Ogólne warunki

Rynek Wtórny
Cena 790 000 PLN
Powierzchnia 81.18
Cena metra 9 731 PLN
Liczba pokoi 3
Piętro 3
Ilość pięter 3

Opis budynku

Typ budynku Blok mieszkalny
Stan techniczny Do odświeżenia
Opłaty 1098.00

Standard

Ogrzewanie C.o. miejskie
Typ budynku Blok mieszkalny
Opłaty 1098.00
Balkon Taras
Ogródek Nie
Winda Tak
Umeblowane Nie
Piwnica Nie

Pomieszczenia

Jasna kuchnia Tak
Wc osobno Nie

Parking / Garaż

Garaż 1 miejsce w hali garażowej

Opiekun oferty

Agnieszka Naskręcka
tel. 508 359 644

e-mail: biuro@nieruchomoscibliskomorza.pl

 

 







Mieszkanie Sprzedaż: Koszalin
Nr oferty 5001518
Liczba pokoi 3
Piętro / Ilość pięter 3 / 3
Cena metra 9 731 PLN
Cena 790 000 PLN
Powierzchnia 81.18 m2

Przestronne mieszkanie z loggią, tarasem i miejscem postojowym w hali garażowej w cenie ! Tu poczujesz się, jak w  domu !

Prezentujemy 2-poziomowy lokal, znajdujący się w nowszym budynku z windą z 2018 roku, przy ul. Hallera na Osiedlu nad Rozlewiskiem (ZIMAR).

Mieszkanie usytuowane na III i IV piętrze o powierzchni użytkowej 81,18 m2.

Na I poziomie znajduje się przestronny korytarz, łazienka z wc, garderoba i 2 pokoje. Z jednego z pokoi wyjście na loggię.

Na II poziom (antresolę) prowadzą piękne drewniane schody, gdzie zaaranżowano duży salon z aneksem kuchennym (ok. 30 m2). Z salonu wyjście na taras.

Mieszkanie bardzo zadbane, ponieważ użytkowane przez 1 osobę. Wykończone w neutralnym, ponadczasowym stylu więc każdemu przypadnie do gustu.

Koszty utrzymania nieruchomości wynoszą 1098 zł czynszu, w tym zaliczka na c.o., fundusz remontowy za lokal i za halę garażową, koszty utrzymania hali garażowej, opłata stała za c.o., zaliczka na wodę (3 m3 ciepłej i 5 m3 zimnej), wywóz nieczystości za 1 0s., utrzymanie części wspólnych - hala garażowa i lokal mieszkalny. Do opłat doliczyć należy jedynie opłaty za energię.

Do mieszkania przynależy miejsce postojowe w hali garażowej, które jest w cenie nieruchomości.

Istnieje możliwość pozostawienia umeblowania.

Zdecydowane atuty nieruchomości to :

- komfort życia, jak w domu,

- loggia (4,57 m2) i taras (5,89 m2),

- miejsce postojowe w hali garażowej w cenie.

Pożądana lokalizacja ! W niedalekiej odległości C.H. Forum i Wodna Dolina. Budynek, w którym mieści się mieszkanie jest jednym z najlepszych na osiedlu.

Przyjdź i zobacz to mieszkanie na żywo, a gwarantujemy, że się nie rozczarujesz !

Oferta na wyłączność. Oglądanie w obecności Pośrednika po uprzednim uzgodnieniu terminu.